Цього року під час капремонтів парків та скверів КО «Київзеленбуд» максимально враховує вимоги доступності для маломобільних груп населення.
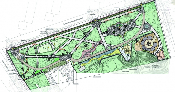
«Київзеленбуд» та фахівці центру реабілітації Superhumans оновлять Павлівський сквер, що біля Республіканської клінічної лікарні МОЗ, з урахуванням вимог безбар’єрності. Відповідну концепцію презентував «Київзеленбуд».

Цього року під час капремонтів парків та скверів КО «Київзеленбуд» максимально враховує вимоги доступності для маломобільних груп населення.

Проєкт капремонту Павлівського скверу розробляють спільно з фахівцями Superhumans Center – центру з протезування, реконструктивної хірургії, реабілітації та психологічної підтримки постраждалих від війни дорослих і дітей. У березні 2024 року Департамент захисту довкілля та адаптації до зміни клімату КМДА підписав меморандум про взаєморозуміння з Superhumans Center, щоб координувати проєкти з реконструкції зелених зон міста з урахуванням потреб маломобільних людей.

Проєктувальники запланували пандуси та сходи з поручнями з обох сторін і замощення доріжок безшовною плиткою.
Встановлять тренувальний майданчик для фізіотерапії з різним типом покриттів та перепадом висоти.

Дитячий майданчик оновлять, додавши елементи інклюзії. Лави матимуть тримачі для милиць.

У Павлівському сквері з’явиться зона з ароматравами та дощовий сад. Запроєктували полив на всій території.

Для домашніх улюбленців облаштують два огороджені майданчики для вигулу собак, для великих та малих порід.
При проєктуванні капремонту об’єкта буде максимально враховано ідентичність скверу та збережено зелені насадження.
___________________________________________________________________________________________________
львівськиЙ 
